RIVERSIDE a RETREAT

Star River Ranch Gated Community

$1.6M

Home sits on .49 acres

6271 Salmon Falls Lane
Star, Idaho 83669

Owner selected custom finishes available

VIRTUAL TOUR

Luxury Mountain Retreat in Star River Ranch

Nestled within the exclusive gated Star River Ranch community, this Mountain Modern masterpiece by RADCON Builders blends elegant design with unparalleled comfort.

The exterior showcases weathered wood siding and stone accents, evoking the warmth of a mountain getaway. A covered front porch welcomes you into the home, setting the stage for a breathtaking interior.

house-plan-image

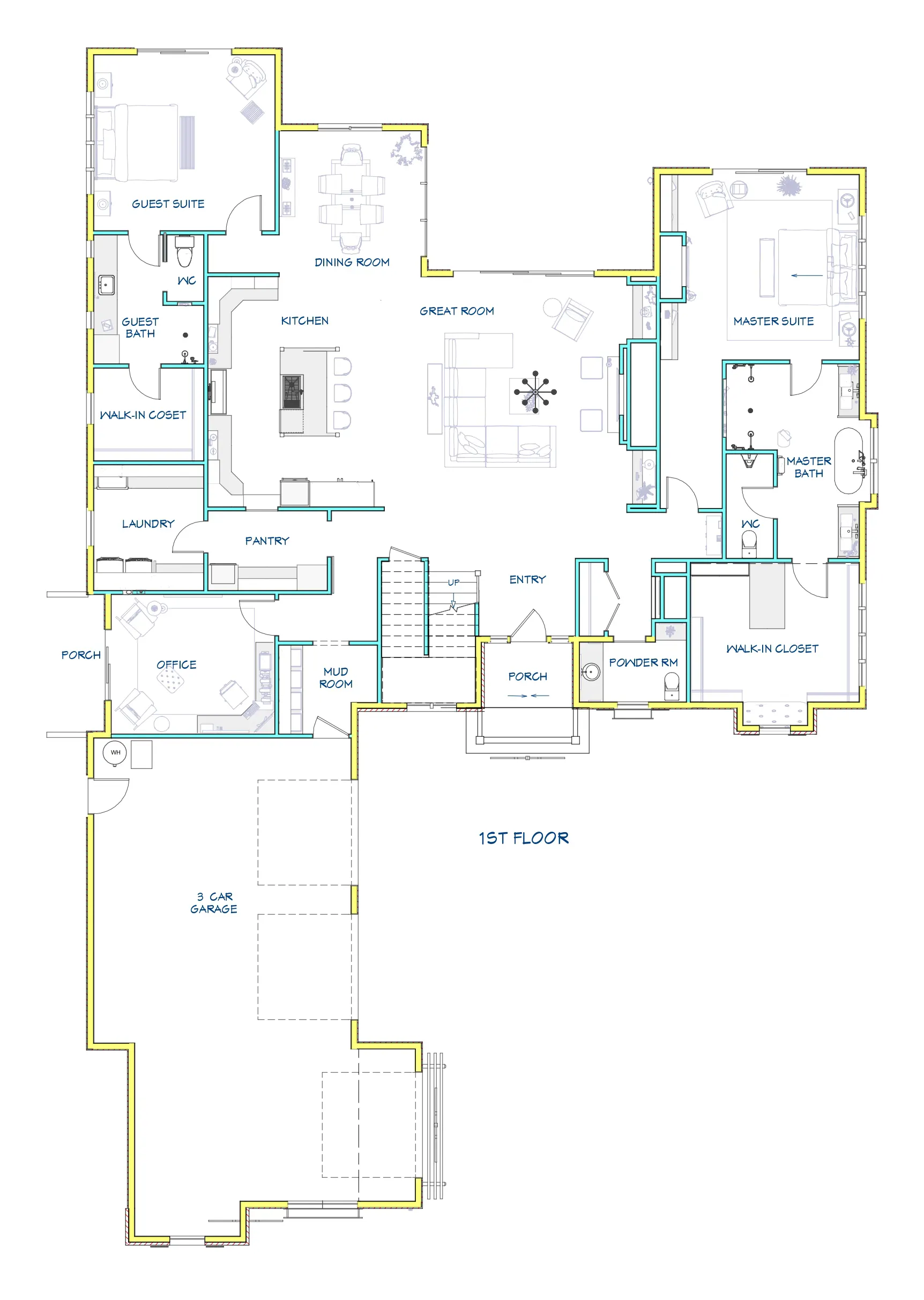
Step inside to a grand 20-foot coffered ceiling in the great room, where an open-concept layout seamlessly connects the living space to a chef’s kitchen outfitted with professional appliances, a farmhouse sink, and a hidden pantry door. Designed for entertaining, the great room flows effortlessly into a spacious patio, perfect for hosting guests.

The main floor features a private office with an exterior entrance and two master suites, including a luxurious primary suite with a vaulted ceiling, spa-inspired bath, dual vanities, soaking tub, walk-in two person shower, private toilet, and a custom master closet with its own laundry area. A cozy fireplace adds warmth, while sliding patio doors lead to a fully landscaped backyard oasis.

coffered-ceiling-image
kitchen-image
fully-landscaped-back-yard
doors-lead-to-a-fully-landscaped-backyard
private-office-image

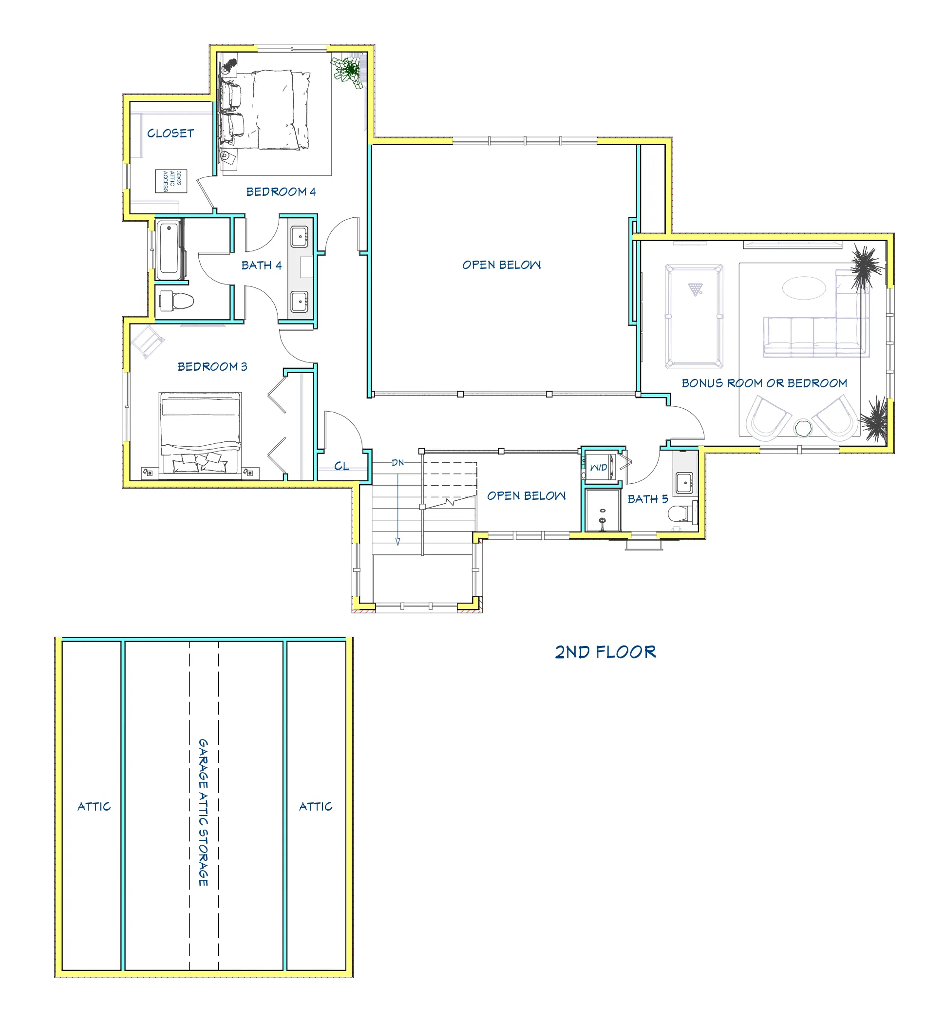
The second floor boasts two spacious bedrooms, a Jack-and-Jill bath, and a versatile bonus room-perfect for a media room, game space, or fifth bedroom.

Discover the finest in modern living, where stunning architecture meets refined comfort in the heart of Star River Ranch.

game-space-room
two-spacious-bedrooms-image

FLOOR PLANS

First Floor

Bedroom
2
Bathroom
3
Garage
3

Second Floor

Bedroom
2
Bathroom
2
Bonus Room
1

Facilities

Home Features

  • Fully landscaped with iron fence to enclose the backyard
  • Ring© door-bell
  • Wi-Fi-enabled touchscreen thermostat
  • Central vacuum system
  • Rinnai tankless water heaters
  • Sound dampening insulation
  • Conditioned crawl space
  • Air sealed structure to comply with ABC standards
  • French oak flooring
  • LED interior accent lighting
  • Quartz counter tops
  • Solid core interior doors
  • 10’ main floor ceilings 9’ second floor ceilings
  • 20’ great room coffered ceiling
  • Outdoor kitchen and pool optional

Fixtures

  • Professional series appliances
  • Kohler plumbing fixtures
  • Kohler farm sink
  • Emtek hardware
  • Solid brass cabinet hardware
  • Designer curated bath hardware and light fixtures

Design Features

  • Custom cabinetry with soft close hardware & maple dove tail drawers
  • Undercabinet LED lighting
  • Engineered French oak flooring
  • Quartz countertops
  • Pella window and doors
  • Custom millwork, wood beams and wood wrapped windows
  • Tile flooring in bathrooms & laundry
  • 8’ solid core doors main floor
  • Designer selected tile
  • Hand-textured walls
  • Coffered great room ceiling
  • Metal and wood staircase railing
radconbuilders.com